Leistungssporthalle Lüdinghausen

Neubau einer Dreifeldsporthalle für den Leistungs- und Schulsport

Wettbewerb 1. Preis 2010

Auslober Stadt Lüdinghausen

Aus der Jurybeurteilung

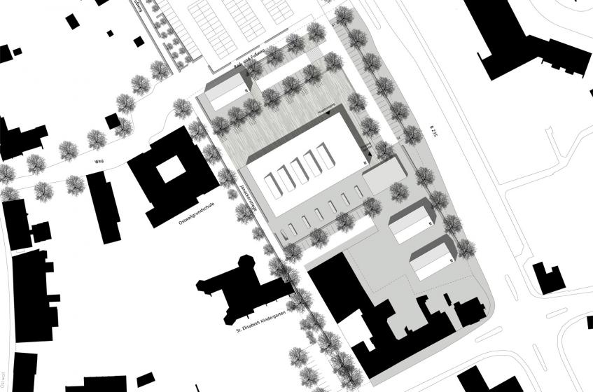
Die geplante Sporthalle wird in Blickbeziehung zu den dominanten Solitären der Edeka- und Bruno-Kleine-Gebäude gesetzt.Über einen großzügigen Vorplatz werden die Besucher wie selbstverständlich in die Sporthalle geleitet und blicken direkt auf den tiefergelegenen Sportbetrieb. Die Verfasser greifen die vorhandenen Hecken- und Gartenstrukturen auf. Für die Stellplätze wird lediglich eine Zufahrt und somit auch nur eine Querung des Fuß- und Radweges benötigt.

Das großzügig verglaste Eingangsfoyer liegt richtig an der Schnittstelle für Besucher und Sportler. Die Glasfassade auch hinter den bis zum Spielfeld gehenden Tribünen lässt sich zudem durch Schiebetüren zum Platz öffnen. Alles ist offen und übersichtlich und verspricht eine gute Atmosphäre auch für den Leistungssport zu werden. Für den Schulsport ist eine separate Erschließung der Umkleiden vorgesehen, hier geben die eingeschobenen Tribünen Platz für die geforderten Sportflächen der Dreifach-Sporthalle. Der Sportbereich ist gut organisiert. Die Materialien mit Glas, Sichtbeton und Holz lassen eine freundliche und robuste Atmosphäre erwarten.